BILTHOVEN
G22
16 / 02 / 2011
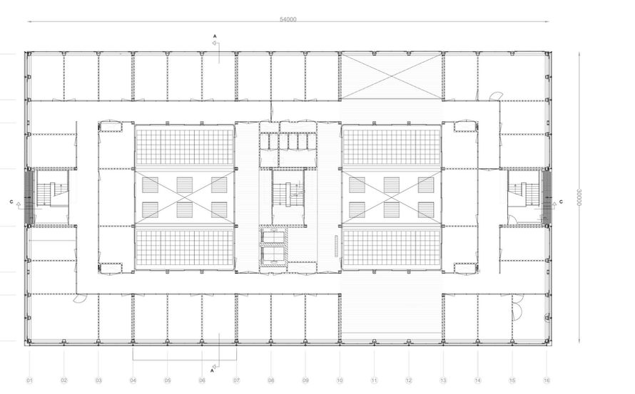
The plot for this energy-efficient office building of 6,000 m2 is bordered by existing buildings on the south side and a set of monumental chest-nut trees on the north side. Early in the design process we concluded that the trees on north side had to remain absolutely intact. These trees would surely add value to the work stations on the north side, from which you could look right into crowns of the trees. However, the pre-set program of requirements did not change, which meant that the building had to be very compact in design.
To achieve the task-program of 325 workplaces we designed a clear symmetrical compact volume with two atria to provide the interior with sufficient natural light. The atria starts on the first floor and have an overhang on the top floor to make the daylight penetrate as deep as possible inside the office. The facades of the atria feature sunlight-driven outdoor blinds. The ceiling of the ground floor is provided with skylights to supply the entrance area and the conference center with day-light.
Around the sun-heated facades (South, West and East) a double gable is 'folded'. This façade consists of profiled aluminum cladding and outdoor blinds. The exterior blinds are an integral part of the facade designed along and coplanar with the profiled sheeting. The open workplaces inside, are made visible by a ‘jump’ in the horizontal articulation of the façade. The aluminum cladding is partly perforated. The blinds, anticipate automatically during the day on the solar load, which gives the façade a dynamic appearance. At any time of the day the appearance of the building is different. Sometimes open and transparent, sometimes closed and introvert.
Office building G22 is realized within an extremely short turnaround time of less than 2 years from the initiative to completion and is connected to a thermal storage.












